CABLE TRAY ROLL FORMING MACHINECable tray rolling forming machine is designed to make cable trays in batch fully automatically.Cable Tray System is used to support insulated cables or wiring for power control, communication and distribution.In the commercial and industrial construction, cable tray is widely used as an alternative to open wiring or cables conduit system. And they are very useful in situation where changes to a cable system are expected. Because new cables can be installed by laying them in the tray, instead of pulling them through a pipe.Here are some cable tray pictures for your reference:Types Of Cable Trayin the market.Solid bottom cable trayVentilated cable trayLadder Tra...
Cable tray rolling forming machine is designed to make cable trays in batch fully automatically.Cable Tray System is used to support insulated cables or wiring for power control, communication and distribution.
In the commercial and industrial construction, cable tray is widely used as an alternative to open wiring or cables conduit system. And they are very useful in situation where changes to a cable system are expected. Because new cables can be installed by laying them in the tray, instead of pulling them through a pipe.Here are some cable tray pictures for your reference:

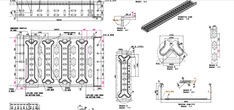
For showing the parameters, I will take this drawing profile for example to explain how the machine is composed:

The whole line is consist of Uncoiler, Leveler, Servo Feeder and Punch Press, Roll Former, Cutoff Unit, Controlled Box, Collection Table.
Working flow of cable tray rolling forming machine:

Electric Uncoiling– leveling– Servo Feeding and Punching– Guiding–Roll Forming– Straightening– Tracking Cutting– Collecting.
As to the decoiler, you can choose either hydraulic decoiler or the manual decoiler. As to the leveling part, we will design as Leveling roller: Upper 3,underneath 4 (totally 7 rollers), wit the Servo Feeder and Punch Press, Feeding type: Servo feeding, width of the material: 0-200mm
ZHONGTUO Cable Tray Machine ROLL FORMING MACHINE:

1.Forming Thickness: 1.0-2.5mm
2.Roll Forming Speed: 10-15m/min
3.Machine base adopt H Steel, welded, adopt iron cast pillar as the machine stands
4.Rollers Material: GCR15, quenched and tempered
5.Shaft Material: ASTM 1045, tempered, 75mm diameter
6.Motor Power of cable tray roll former : 15KW
7.Cable Tray Roll Forming Stands: 22 stands
8.Width Adjustment: PLC controlled automatically adjustment.
9.Drive type: By Chain or Gear Box
Zhongtuo Cable tray rolling forming machine shearing part:
1.Before cutting for increasing the machine working speed.
2.Cutting Blade Material: Cr12Mov, Quench treatment, HRC58-62
3.Hydraulic Station Power: 15KW

Zhongtuo Cable tray rolling forming machine PLC Control System
1. Adopts PLC control technology, frequency adjust speed technology, realize the automatic production.
2.The worker can set the batches, length, quantity on the touch screen, then the cable tray roll forming machine will work automatically.
3.Operation type: Touching screen and Button
4. Using encoder to calculate the number and measuring the length
5.Electrical control: PLC frequency control system with touch screen
6.PLC: Panasonic Brand or Siemens
7.Encoder: Omron Brand
8.Touch Screen: MCGS or Siemens
9.Inverter: Yaskawa
10.Adopt aviation plug for easy connect the wiring


Here is the machine working videos for your reference:
Contact Us For More Roll Forming Machine Detailed Information
You can contact us either through phone number 0086-15127778288 within our working hours, or send an email to cnzt006@zhongtuocn.com, or send an inquiry form to us using "Inquiry Now" option. Our customer representatives will respond as soon as possible.